Zu Verkaufen €382.000 - Etagenwohnung
Objektbeschreibung
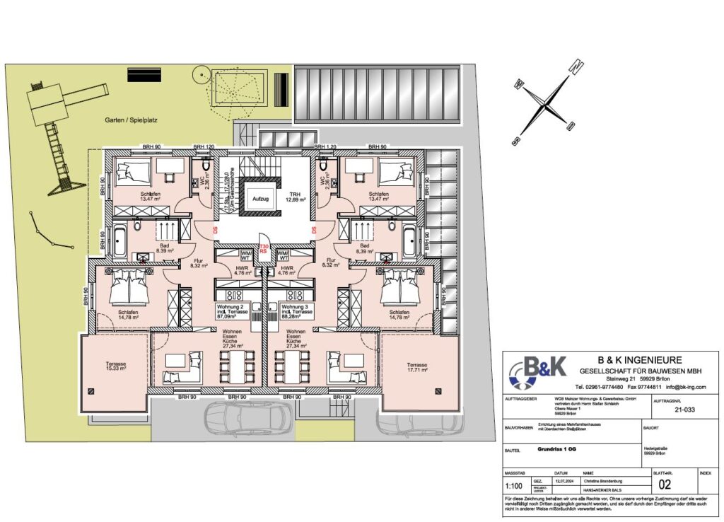
Exklusives Neubauprojekt mit 6 hochwertigen, barrierearmen Wohnungen in Top-Wohnlage. 3 Wohnungen sind bereits fest reserviert bzw. verkauft. Mit dem Bau wird im Frühjahr 2026 begonnen. Fertigstellung Mitte 2027. Moderne Architektur und energieeffiziente Bauweise sorgen für höchsten Wohnkomfort. Ideal für Selbstnutzer jeden Alters oder Kapitalanleger. Für Kapitalanleger winkt die hohe degressive Abschreibung mit anfänglich 5 %, für Käufer die vor 2029 eine Eigentumswohnung kaufen. Gern können wir auch für Sie eine mehrjährige Mietgarantie übernehmen. Sehr gut aufgeteilte 3 Zimmer, Küche, Diele, Bad/WC, Gäste-WC, Hauswirtschaftsraum mit Waschmaschinenanschluss und ein 17 m² großer Südbalkon lassen keine Wünsche offen. Ein Kellerraum ist ebenfalls im Kaufpreis enthalten. Für die Fahrräder gibt es auf dem Grundstück einen separaten Abstellraum. Eine Garage wird mit verkauft. Große Fensterflächen sorgen für Helligkeit. Die barrierearme Bauausführung ist ideal für Jung und Alt. Mit dem Aufzug gelangen Sie fast bis vor die Wohnung. Die Badezimmer verfügen selbstverständlich über Fenster. Der Verkauf erfolgt Provisionsfrei!
Lage
In zentraler und absolut ruhiger Wohnlage, innerhalb einer reinen Anliegerstraße, wird dieses ansprechende Wohnhaus mit nur 6 Eigentumswohnungen in 2026 gebaut. Den Marktplatz erreichen Sie ebenerdig in wenigen Gehminuten. Mit über 27.500 Einwohnern ist Brilon eine der größten Städte im Hochsauerlandkreis und gehört auch zu Südwestfalen, der drittstärksten Wirtschaftsregion in Deutschland. Die optimale Verkehrsanbindung an der Bundesstraße B 7 und B 480 sowie den Autobahnen A 33 und A 44 macht Brilon auch für Pendler interessant. Der Bahnhof in der Kernstadt versorgt Sie mit einer überregionalen Bahnverbindung. Ein Flugplatz für Sportflieger rundet das Verkehrsangebot ab. Natürlich ist auch der öffentliche Nahverkehr gut ausgebaut. Die attraktive Fußgängerzone mit zahlreichen inhabergeführten Geschäften ist nur wenige Meter vom Neubauprojekt entfernt. Ebenso finden Sie dort ein ansprechendes Gastronomieangebot. Das städtische Krankenhaus mit vielen Fachabteilungen übernimmt die gesundheitliche Versorgung. Brilon zeichnet sich als Top-Wirtschaftsstandort aus und verfügt über Industrie, Handwerk und Dienstleistung. Hierunter befinden sich auch einige Weltmarktführer. Ein starker Fremdenverkehr mit fast 400.000 Übernachtungen ist ein weiterer Standortfaktor für die waldreichste Stadt Deutschlands. Winterberg und Willingen erreichen Sie in 15 bzw. 30 Autominuten. Eine wunderschöne Natur mit Wäldern und Wiesen lädt besonders Wanderer und Biker ein. Hier startet auch der weitläufig bekannte Rothaarsteig-Wanderweg. Das Hallenbad und eines der größten Natur-Freibäder laden zum Schwimmen ein. Sämtliche Schulformen stehen den Schülern zur Verfügung. Das sehr große Sportangebot, mit den entsprechenden Anlagen, ist nicht selbstverständlich für eine Stadt dieser Größe. Zusammenfassend kann man sagen, ein 1-A Standort zum Wohnen und Investieren.
Ausstattung
3 Zimmer, Küche, Diele, Bad/WC, Gäste-WC, Hauswirtschaftsraum und großer Südbalkon. Barrierearm. 3-fach-Verglasung. Luftwärmepumpe, Fußbodenheizung, Gäste-WC und Hauswirtschaftsraum in der Wohnung mit Waschmaschinenanschluss, Bad mit Fenster, Aufzug, Garage, Keller und Fahrradraum. Wallbox-Anschluss auf Wunsch möglich. Nur noch einziehen!
Weiter Details
- Zimmer insgesamt: 3
- Anzahl Stellplätze: 2
- Heizungsart: Fußbodenheizung
- Anzahl Etagen: 3,0
- Etage: 2
- Kaufpreis: 382.000 €
- Anzahl Garagenstellplätze: 1
- Stellplatzkaufpreis (Garage): 20.000 €
- Balkone: 1
- Art der Ausstattung: gehoben
- Befeuerung: Luft-Wärmepumpe
- Badausstattung: Dusche, Badewanne, Fenster im Badezimmer
- Stellplatzart: Garage
- Baujahr: 2026
- Zustand: Erstbezug
- Immobilie ist verfügbar ab: sofort




