Zu Verkaufen €839.000 - Einfamilienhaus
Objektbeschreibung
Herzlich willkommen in Ihrem neuen Zuhause! Dieses großzügige Einfamilienhaus mit Einliegerwohnung, erbaut im Jahr 1986, bietet Ihnen eine beeindruckende Kombination aus Raum und Komfort auf ca. 290 m² Wohnfläche und ca. 140 m² Nutzfläche. Die durchdachte Raumaufteilung und die vielseitigen Nutzungsmöglichkeiten machen diese Immobilie zu einem idealen Ort für Familien oder Käufer mit hohem Platzbedarf sowie für das Mehrgenerationenwohnen.
Das große Grundstück hat eine Gesamtfläche von ca. 1.206 m². Nach Bedarf besteht hier die Möglichkeit, ebenfalls das angrenzende Baugrundstück mit einer Fläche von ca. 408 m² zu erwerben. Dieses Baugrundstück ist nicht in dem aktuellen Kaufpreis enthalten.
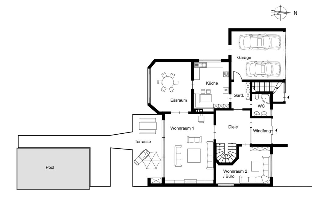
Bei Betreten des Hauses empfängt Sie eine großzügige Eingangsdiele mit Windfang, die einen einladenden ersten Eindruck hinterlässt. Der großzügige Wohn-/Essbereich von 63 m² begeistert durch bodentiefe Fenster, die einen stufenlosen Übergang zum liebevoll angelegten Garten bieten. Hier genießen Sie einen idyllischen Blick in den angrenzenden Wald. Die teilüberdachte Terrasse führt zum beheizten Außenpool, dessen Temperatur optimal durch Sonnenkollektoren reguliert wird.
Die geräumige Wohnküche grenzt an das Esszimmer an, während ein weiteres Zimmer im Erdgeschoss als Schlaf-, Arbeits- oder Gästezimmer genutzt werden kann. Ein Duschbad mit Tageslicht rundet das Erdgeschoss ab. Ein besonderes Highlight ist der direkte Zugang von der Doppelgarage ins Haus.
Das Obergeschoss bietet fünf Zimmer und drei fensterreiche Bäder sowie einen Balkon, der sich über die gesamte Rückseite des Hauses erstreckt. Er bietet einen tollen Blick in den Garten und auf den Pool. Bei Nutzung der Einliegerwohnung, stehen ein Elternschlafzimmer mit Vorraum und En-Suite-Badezimmer sowie zwei weitere Schlafräume mit Duschbad zur Verfügung.
Die Einliegerwohnung ist räumlich getrennt und über einen zusätzlichen, separaten Eingang im Erdgeschoss zugänglich. Der Wohn-/Küchenbereich, das Schlafzimmer, die Diele und ein Duschbad mit Waschmaschinenanschluss gestalten ein attraktive Wohnoption.
Hervorzuheben ist das Ausbaupotenzial der Dachspitze, das Ihnen weitere Gestaltungsfreiheit bieten könnte. Insgesamt muss man festhalten, dass bei der damaligen Erstellung der Immobilie sehr hochwertige Materialen sowohl im Innenausbau sowie bei dem Gebäude selbst, verwendet worden sind. Die Immobilie präsentiert sich in einem sehr gepflegten Zustand und bietet Raum für Anpassungen an heutige Ansprüche.
Der vollunterkellerte Bereich umfasst sechs Räume, inklusive eines Hobbyraums, Vorratsraums und weiterer flexibel nutzbarer Flächen. Die Zentralheizung aus dem Jahr 2008 arbeitet mit Gas als Energieträger.
Lassen Sie sich von dieser einmaligen Chance überzeugen und gestalten Sie Ihr neues Zuhause ganz nach Ihren Vorstellungen. Gerne stehen wir Ihnen für weitere Informationen und Besichtigungen zur Verfügung.
Lage
Dieses Einfamilienhaus mit Einliegerwohnung befindet sich in Lohmar in einer ruhigen und familienfreundlichen Wohnlage im Rhein-Sieg-Kreis. Das Umfeld ist geprägt von gepflegten Ein- und Zweifamilienhäusern sowie großzügigen Grundstücken – ideal für alle, die ein entspanntes Wohnambiente mit hoher Lebensqualität schätzen.
Einkaufsmöglichkeiten für den täglichen Bedarf, Schulen und Kindergärten sind in wenigen Minuten erreichbar. Auch die Anbindung an den öffentlichen Nahverkehr ist gut, sodass sich Wege innerhalb Lohmars sowie in die umliegenden Orte bequem gestalten lassen.
Für Pendler besonders attraktiv: Über die nahegelegenen überregionalen Verkehrsachsen bestehen sehr gute Verbindungen in Richtung Köln und zu weiteren Städten der Region. Gleichzeitig bietet die naturnahe Umgebung vielfältige Freizeit- und Erholungsmöglichkeiten – von Spazier- und Radwegen bis hin zu Ausflugszielen im Grünen. Hier vereinen sich ruhiges Wohnen, gute Infrastruktur und eine vorteilhafte Lage in der Metropolregion Köln/Bonn.
Ausstattung
– beheizter Pool im Außenbereich mit Sonnenkollektoren
– teilweise überdachte Terrasse
– großzügiger Wohn-/Essbereich
– Kaminanschluss im Wohnbereich möglich
– verschiedene Nutzungsmöglichkeiten
– großzügiger Balkon auf der Rückseite
– Vollunterkellerung inkl. Hobbyraum
– Doppelgarage mit direktem Zugang zum Haus
– alle Bäder sind mit Tageslichtfenstern ausgestattet
Weiter Details
- Grundstücksfläche: 1.206 m²
- Zimmer insgesamt: 8
- Anzahl Stellplätze: 2
- Heizungsart: Zentralheizung
- Anzahl Etagen: 2,0
- Kaufpreis: 839.000 €
- Courtage: 3,57 % inkl. MwSt.
- Anzahl Garagenstellplätze: 2
- Nutzfläche: 140 m²
- Balkone: 1
- Terrassen: 1
- Art der Ausstattung: gehoben
- Befeuerung: Gas
- Baujahr: 1986
- Zustand: gepflegt
- Immobilie ist verfügbar ab: nach Vereinbarung



















