Zu Verkaufen €425.000 - Bungalow
Objektbeschreibung
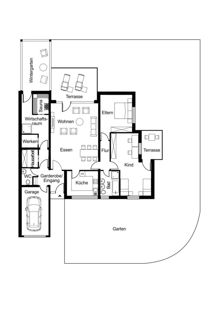
Dieser charmante Bungalow aus dem Baujahr 1973 überzeugt mit einer großzügigen Wohnfläche von ca. 125 m² und einem durchdachten Raumkonzept. Herzstück des Hauses ist das lichtdurchflutete Wohnzimmer, das dank eines Oberlichts zur Straßenseite sowie einer großen Fensterfront zum Garten eine helle und freundliche Atmosphäre schafft. Die hohe Decke unterstreicht das offene Wohngefühl und verleiht dem Raum eine besondere Großzügigkeit.
Ergänzt wird das Raumangebot durch eine praktisch geschnittene Küche, ein Gäste-WC sowie zwei geräumige Schlafzimmer. Das Tageslichtbad ist mit Badewanne und Dusche ausgestattet und bietet angenehmen Komfort. Ein besonderes Highlight stellt der separate Wellnessbereich mit Sauna und zusätzlicher Dusche dar – ideal zum Entspannen in den eigenen vier Wänden. Darüber hinaus verfügt die Immobilie über zwei Abstellräume sowie einen nachträglich errichteten, gemütlichen Freisitz, der zum Verweilen im Freien einlädt. Die direkt ans Haus angebundene Garage ermöglicht einen komfortablen Zugang ins Innere. Im Jahr 1997 wurden die Fenster in den Schlafzimmern erneuert. Ebenfalls in diesem Jahr entstanden der Freisitz sowie die Sauna. Das ca. 518 m² große Grundstück bietet einen gepflegten Garten, der das Haus in U-Form umschließt. Zwei Terrassen sorgen dafür, dass Sie zu jeder Tageszeit ein sonniges Plätzchen im Freien genießen können. Mit etwas handwerklichem Geschick und gezielten Renovierungsmaßnahmen lässt sich hier ein wunderschönes Zuhause mit viel Charme und Potenzial verwirklichen.
Lage
Der Bungalow befindet sich im beliebten Siegburger Stadtteil Kaldauen, einer ruhigen und begehrten Wohngegend im Rhein-Sieg-Kreis in Nordrhein-Westfalen. Die Umgebung vereint auf harmonische Weise naturnahes Wohnen mit den Vorzügen einer guten Infrastruktur. Dank der guten Anbindung an den öffentlichen Nahverkehr sowie der Nähe zur Autobahn ist der Standort besonders für Pendler attraktiv. Der ICE-Bahnhof in Siegburg ist nur wenige Autominuten von der Immobilie entfernt. Einkaufsmöglichkeiten, Schulen und Freizeiteinrichtungen befinden sich in unmittelbarer Umgebung und tragen zu einem komfortablen Lebensstil bei. Die reizvolle Landschaft lädt zu ausgedehnten Spaziergängen und vielfältigen Outdoor-Aktivitäten ein, während das lebendige Siegburger Stadtzentrum mit einem abwechslungsreichen Kultur- und Gastronomieangebot überzeugt.
Ausstattung
– Schönes Eckgrundstück mit zwei Terrassen
– Wohnen auf einer Ebene
– Garage mit direktem Zugang ins Haus
– Großzügiger, heller Wohn-/Essbereich
– Sauna
– separates Gäste-WC
– Nachträglich angebauter Freisitz
– Wenige Gehminuten zu wunderschönen Spazierwegen
Weiter Details
- Grundstücksfläche: 518 m²
- Zimmer insgesamt: 3
- Anzahl Stellplätze: 2
- Heizungsart: Etagenheizung
- Anzahl Etagen: 1,0
- Kaufpreis: 425.000 €
- Courtage: 3,57 % inkl. MwSt.
- Anzahl Außenstellplätze: 1
- Anzahl Garagenstellplätze: 1
- Nutzfläche: 17,76 m²
- Separate WCs: 1
- Terrassen: 2
- Art der Ausstattung: Standard
- Befeuerung: Elektro
- Baujahr: 1973
- Zustand: gepflegt










